Bilocale in vendita

Lissone, Via Volturno
€ 224.000
2 locali 2 locali
81 Mq 81 Mq
1 bagno 1 bagno

Bilocale in vendita

Lissone, Via Volturno

Descrizione annuncio

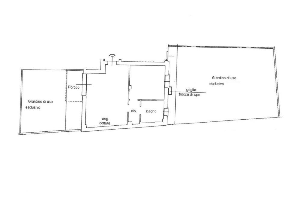
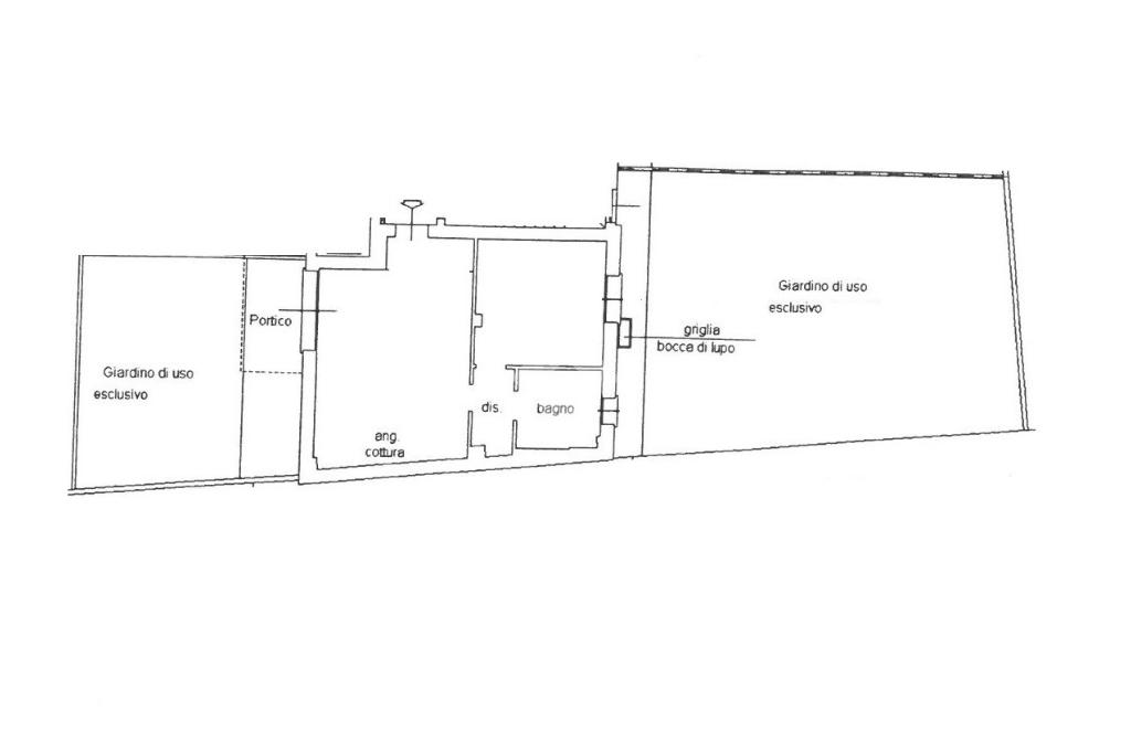
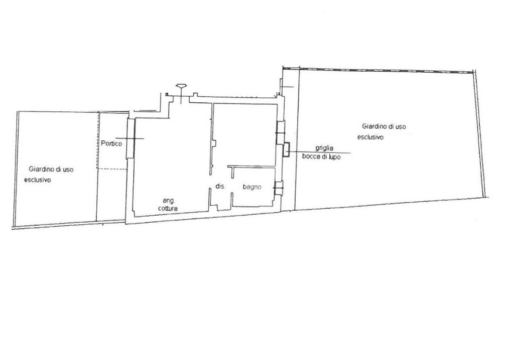
Nel cuore di una zona residenziale e ricercata di Lissone, caratterizzata da costruzioni recenti e contesti moderni, proponiamo in vendita un elegante appartamento con giardino situato a pochi passi dal centro cittadino. La posizione è particolarmente comoda in quanto tutti i principali servizi sono raggiungibili a piedi, tra cui scuole, negozi, il centro e la stazione ferroviaria. L’abitazione si trova all’interno di una palazzina di recente costruzione edificata nel 2014, inserita in un contesto curato in ogni minimo dettaglio, che garantisce qualità abitativa e tranquillità. L’appartamento è posto al piano terra e gode di entrambi gli affacci interni, caratteristica che lo rende particolarmente riservato e silenzioso. L’ingresso introduce direttamente nella spaziosa zona giorno, composta da soggiorno con cucina a vista e accesso diretto al primo giardino privato esposto a sud, che garantisce un’ottima luminosità e un’eccellente esposizione solare durante tutta la giornata. Un comodo disimpegno offre lo spazio ideale per realizzare, tramite armadiature su misura, un pratico ripostiglio con zona asciugatrice.
Il bagno è finestrato, dotato di ampia doccia e sanitari sospesi, con finiture moderne e funzionali. La camera da letto matrimoniale, ampia e ben distribuita, si affaccia sul secondo giardino privato esposto a ovest, uno spazio esterno ampio e riservato, completo di punto acqua, perfetto per momenti di relax all’aperto. Completano la proprietà cantina e box, inclusi nel prezzo. L’immobile è dotato di comfort e tecnologie moderne che garantiscono un elevato livello di qualità abitativa: il riscaldamento è a pavimento e centralizzato con contabilizzatori autonomi. Gli infissi sono dotati di vetrocamera, le tapparelle sono elettriche e la porta d’ingresso è blindata. È presente aria condizionata nella zona giorno e la predisposizione nella zona notte.

Mostra tutto

Nelle vicinanze

Trasporto pubblico Trasporto pubblico
Lissone-Muggiò
Lissone-Muggiò
990 m
Desio
Desio
1,5 Km
Trasporto pubblico
190 m
Via Matteotti - Via Carducci (Lissone)
Via Matteotti - Via Carducci (Lissone)
800 m
Ricariche auto elettriche Ricariche auto elettriche
Lidl Lissone
1,7 Km
U2 Supermercato Biassono | EnelX
2,5 Km
Sporting Club Monza
3,0 Km
Scuole Scuole
Scuola Primaria Dante Alighieri
120 m
Scuola Secondaria di Primo Grado Benedetto Croce
170 m
Scuola Elementare San Giorgio
730 m
Scuole
750 m
IIS-IPSIA Giuseppe Meroni
1,1 Km
Farmacia Farmacia
Nuova
350 m
Farmacia Centrale
560 m
Farmacia Pozzi
560 m
Parafarmacia Dott.ssa Citterio
800 m
San Giorgio
1,1 Km
Ospedali Ospedali
Ospedale di Lissone
620 m
Ospedale San Gerardo
2,4 Km
Supermercati Supermercati
Iperal
320 m
Carrefour Market
610 m
Simply
920 m
Di Più
920 m
Effemarket
970 m
Negozi Negozi
Missaglia
180 m
Saxx
310 m
Nunù
410 m
Il Bombaio
480 m
Cashmere Mania
490 m
Bar Bar
Uncle Paul
470 m
Bar Il Falco
660 m
Real Beach
1,1 Km
Level
1,2 Km
Bar
1,7 Km
Ristoranti Ristoranti
Yume
370 m
Martin Pescatore
470 m
Tango Pizza
490 m
Anema e Core
500 m
Officina della Pizza
550 m
Mostra tutto

Caratteristiche

Rif.:
61188833
Piano:
Terra di 4 con ascensore
Totale piani:
4
Box:
1
Camere da letto:
1
Arredamento:
Parziale
Mostra tutto
Prezzo Prezzo
€ 224.000
Rata mutuo Rata mutuo
€ 1.064 / mese
Spese annue Spese annue
€ 2.400
Proponi il tuo prezzoProponi il tuo prezzo

Classe Energetica

B
B
B
B
B
B
B
B
B
EP globale non rinnovabile:
37.83 kW h/m² anno
EP globale rinnovabile:
7.56 kW h/m² anno
EP invernale del fabbricato:
EP estiva del fabbricato:
Anno di costruzione:
2014
Riscaldamento:
Autonomo
Tipo impianto:
A pavimento
Tipo alimentazione:
Metano

Ti interessa visionare l'immobile?

Fissa un appuntamento  Fissa un appuntamento

Richiedi informazioni

Clicca su Leggi per aprire l'informativa
* Questi campi sono obbligatori

Calcola il tuo mutuo

Semplice e senza impegno
Anticipo

( % )
Mutuo

( % )

pochi semplici passi

inserisci i tuoi dati
Questionario completato
Grazie per aver richiesto un appuntamento senza impegno con un nostro Consulente del Credito e Assicurativo.

Hai inserito correttamente tutti i dati necessari e a breve riceverai una e-mail con un link da convalidare per inviare i tuoi dati.
Affiliato
Studio Lissone Srl
Via Don Giovanni Minzoni , 26 20851 Lissone (MB)

Il nostro staff


  • Nicola Perillo
    Responsabile

  • Lara Abbondi
    Coordinatrice

  • Edoardo Gatti
    Collaboratore

  • Melissa Miraglia
    Coordinatrice

  • Edoardo Ripamonti
    Collaboratore

  • Carmelo Vella
    Affiliato
Via Don Giovanni Minzoni , 26 20851 Lissone (MB)
Zona: Lissone Centro
Mostra su mappa
Orari: lunedì 10:00-12:30 e 14:30-19:30, martedì al venerdì: 9:00-12:30 e 14:30-19:30; sabato 9:00-12:30 e 14:30-18:00
Affiliato
Studio Lissone Srl
Via Don Giovanni Minzoni , 26 20851 Lissone (MB)

2026 Tecnocasa Franchising S.p.A. - P. IVA 08365160152 - Via Monte Bianco 60/A 20089 Rozzano (MI). Ogni agenzia ha un proprio titolare ed è autonoma. Privacy policy | Policy utilizzo | Cookie policy