Trilocale in vendita

Lissone, Via P. Sarpi
€ 290.000
3 locali 3 locali
102 Mq 102 Mq
1 bagno 1 bagno

Trilocale in vendita

Lissone, Via P. Sarpi

Descrizione annuncio

Se stai cercando un appartamento confortevole in una zona strategica, questo trilocale a Santa Margherita di Lissone potrebbe essere la soluzione ideale per te!

Situato al secondo piano di una palazzina del 2013, l'immobile si trova in una zona ben servita e facilmente raggiungibile da Seregno e dalla SS36, rendendo ogni spostamento pratico e veloce.

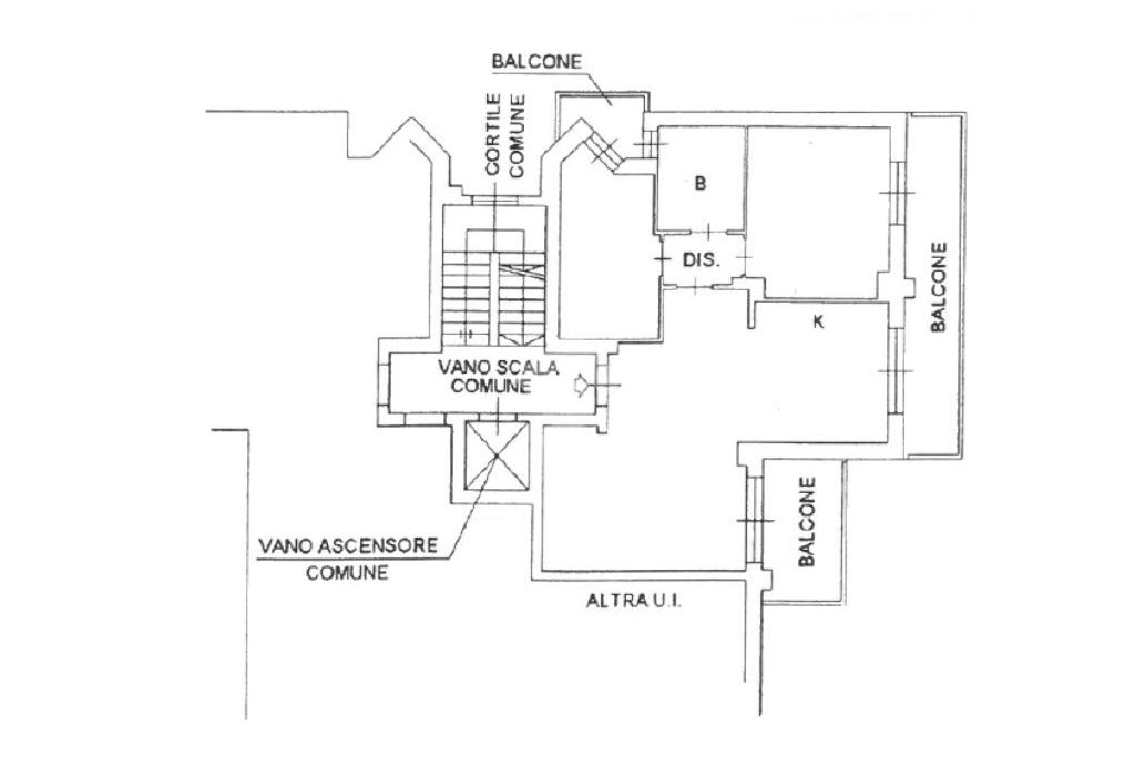
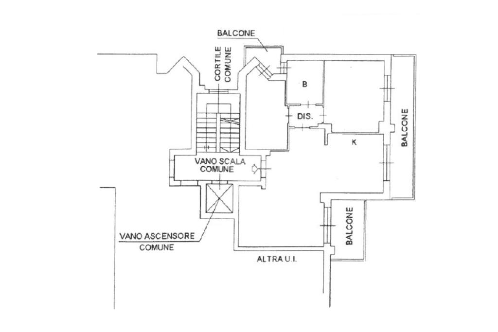
Tramite la porta blindata, accediamo direttamente nella zona giorno, caratterizzata da un soggiorno accogliente e una cucina leggermente separata. Questo spazio è perfetto per momenti di socialità e relax. Dal soggiorno accediamo al primo balcone, ideale per godere di un caffè all’aria aperta, mentre dalla cucina possiamo accedere al secondo balcone, combaciante con la camera matrimoniale, offrendo così una piacevole vista e un affaccio diretto. Proseguendo nel disimpegno, sulla destra troviamo la camera matrimoniale, un ambiente spazioso e luminoso, perfetto per il tuo riposo. Di fronte si trova il bagno finestrato, dotato di ampia doccia, sanitari sospesi e scaldasalviette. A sinistra, la cameretta, ideale per i più piccoli o come studio, dispone di un terzo balcone, offrendo ulteriore luminosità all’ambiente.

L’appartamento è dotato di numerosi comfort: ascensore, riscaldamento autonomo a pavimento, predisposizione per l’aria condizionata, infissi in legno con doppio vetro, antifurto volumetrico e perimetrale, tapparelle elettriche con comando centralizzato e videocitofono. La doppia esposizione garantisce luminosità e ventilazione naturale in ogni ambiente.

Inclusi nel prezzo troviamo una cantina e un box auto, un valore aggiunto che rende questa proposta ancora più interessante.

Non lasciarti sfuggire l'opportunità di visitare questo appartamento! Contattaci per fissare un appuntamento e scoprire di persona tutte le potenzialità di questa offerta!

Mostra tutto

Nelle vicinanze

Trasporto pubblico Trasporto pubblico
Desio
Desio
2,0 Km
stazione di Macherio-Sovico
stazione di Macherio-Sovico
2,6 Km
Trasporto pubblico
170 m
Via Toti - Via Betulla (Lissone)
Via Toti - Via Betulla (Lissone)
330 m
Ricariche auto elettriche Ricariche auto elettriche
U2 Supermercato Biassono | EnelX
1,7 Km
Scuole Scuole
Scuola primaria "Gianni Rodari"
470 m
Scuola Secondaria di Primo Grado Bareggia
590 m
Scuola Secondaria di Primo Grado Santa Margherita
640 m
Scuola Primaria Michelangelo Buonarroti
690 m
Scuola Primaria De Amicis
730 m
Farmacia Farmacia
Farmacia Bareggia
420 m
LLoid Comunale n. 2
690 m
San Giorgio
1,2 Km
Nuova
2,0 Km
Farmacia Centrale
2,2 Km
Ospedali Ospedali
Ospedale di Lissone
1,2 Km
Dedalo Psicologia
2,8 Km
Supermercati Supermercati
Effemarket
520 m
Simply
960 m
Di Più
1,0 Km
LD Market
1,1 Km
Iperal
2,1 Km
Negozi Negozi
Panetteria San Giorgio
1,1 Km
Mec Shopping
1,2 Km
Dolce Forno Lissone
1,4 Km
Missaglia
2,0 Km
Dell'Orto Daniele
2,1 Km
Bar Bar
Punto Nord
750 m
Le Le Bahia
1,2 Km
Joy Village
1,2 Km
Uncle Paul
1,6 Km
Al baretto cafè
2,1 Km
Ristoranti Ristoranti
Kofler Haus
560 m
American Pizza
780 m
Amici Miei Cucina & Pizza
810 m
Bar San Giorgio dal 1905
1,0 Km
La Nostra Trattoria
1,1 Km
Mostra tutto

Caratteristiche

Rif.:
61111891
Piano:
2 di 4 con ascensore (Piano medio)
Box:
1
Balconi:
3
Camere da letto:
2
Arredamento:
Assente
Mostra tutto
Prezzo Prezzo
€ 290.000
Rata mutuo Rata mutuo
€ 1.369 / mese
Spese annue Spese annue
€ 2.500
Proponi il tuo prezzoProponi il tuo prezzo

Classe Energetica

B
B
B
B
B
B
B
B
B
EP globale non rinnovabile:
78.63 kW h/m² anno
EP globale rinnovabile:
12.50 kW h/m² anno
EP invernale del fabbricato:
EP estiva del fabbricato:
Anno di costruzione:
2013
Riscaldamento:
Autonomo
Tipo impianto:
A pavimento
Tipo alimentazione:
Altro

Ti interessa visionare l'immobile?

Fissa un appuntamento  Fissa un appuntamento

Richiedi informazioni

Clicca su Leggi per aprire l'informativa
* Questi campi sono obbligatori

Calcola il tuo mutuo

Semplice e senza impegno
Anticipo

( % )
Mutuo

( % )

pochi semplici passi

inserisci i tuoi dati
Questionario completato
Grazie per aver richiesto un appuntamento senza impegno con un nostro Consulente del Credito e Assicurativo.

Hai inserito correttamente tutti i dati necessari e a breve riceverai una e-mail con un link da convalidare per inviare i tuoi dati.
Affiliato
Studio Lissone Srl
Via Don Giovanni Minzoni , 26 20851 Lissone (MB)

Il nostro staff


  • Nicola Perillo
    Responsabile

  • Lara Abbondi
    Coordinatrice

  • Edoardo Gatti
    Collaboratore

  • Melissa Miraglia
    Coordinatrice

  • Edoardo Ripamonti
    Collaboratore

  • Carmelo Vella
    Affiliato
Via Don Giovanni Minzoni , 26 20851 Lissone (MB)
Zona: Lissone Centro
Mostra su mappa
Orari: lunedì 10:00-12:30 e 14:30-19:30, martedì al venerdì: 9:00-12:30 e 14:30-19:30; sabato 9:00-12:30 e 14:30-18:00
Affiliato
Studio Lissone Srl
Via Don Giovanni Minzoni , 26 20851 Lissone (MB)

2025 Tecnocasa Franchising S.p.A. - P. IVA 08365160152 - Via Monte Bianco 60/A 20089 Rozzano (MI). Ogni agenzia ha un proprio titolare ed è autonoma. Privacy policy | Policy utilizzo | Cookie policy